Gårdsvägen 6 Tomtfastighet om 2 123 kvm med underbara omgivningar och svårslagna vyer över Kalmarsund
Scrolla ner

Gårdsvägen 6

4 975 000 kr

Kommun/Område:
Borgholm / Ekerum
Bostadstyp:
Tomt
Fast.beteckning:
Halltorp 1:28

Kontakta mäklaren för visning.

Förverkliga nybyggardrömmen på underbara Ekerum Precis vid infarten till Ekerum Resort Öland väntar en tomtfastighet som sätter fart på fantasin. Denna orörda canvas om 2 123 kvm bjuder in dig att bygga ett hem som speglar både din stil och platsens unika prakt. Här kan du låta arkitekturen möta naturen, där ljuset från Kalmarsund speglar sig i dina fönster och golfbanans grönskande landskap blir din närmaste granne.
Tänk dig att vakna upp till havets skiftande tavla i väster, lika dramatisk i vinterstorm som magisk i sommarkvällens solnedgång. När du kliver över tomtgränsen står du redan på hål 18 på Långe Erik, och bara några steg bort väntar Långe Jan, en av Sveriges mest hyllade banor. Här flätas hav, natur och golf samman till en unik inramning för ditt framtida hem.

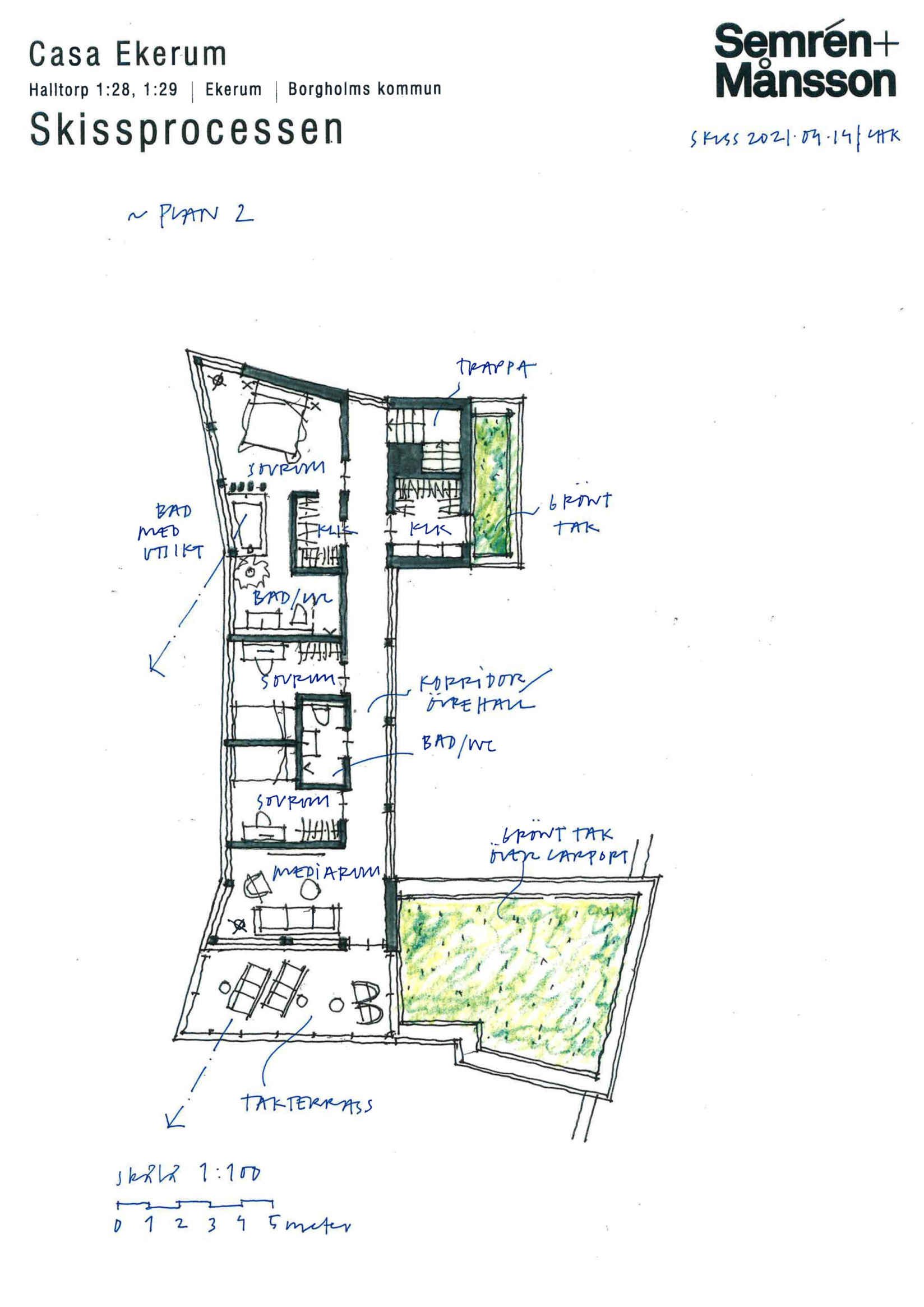
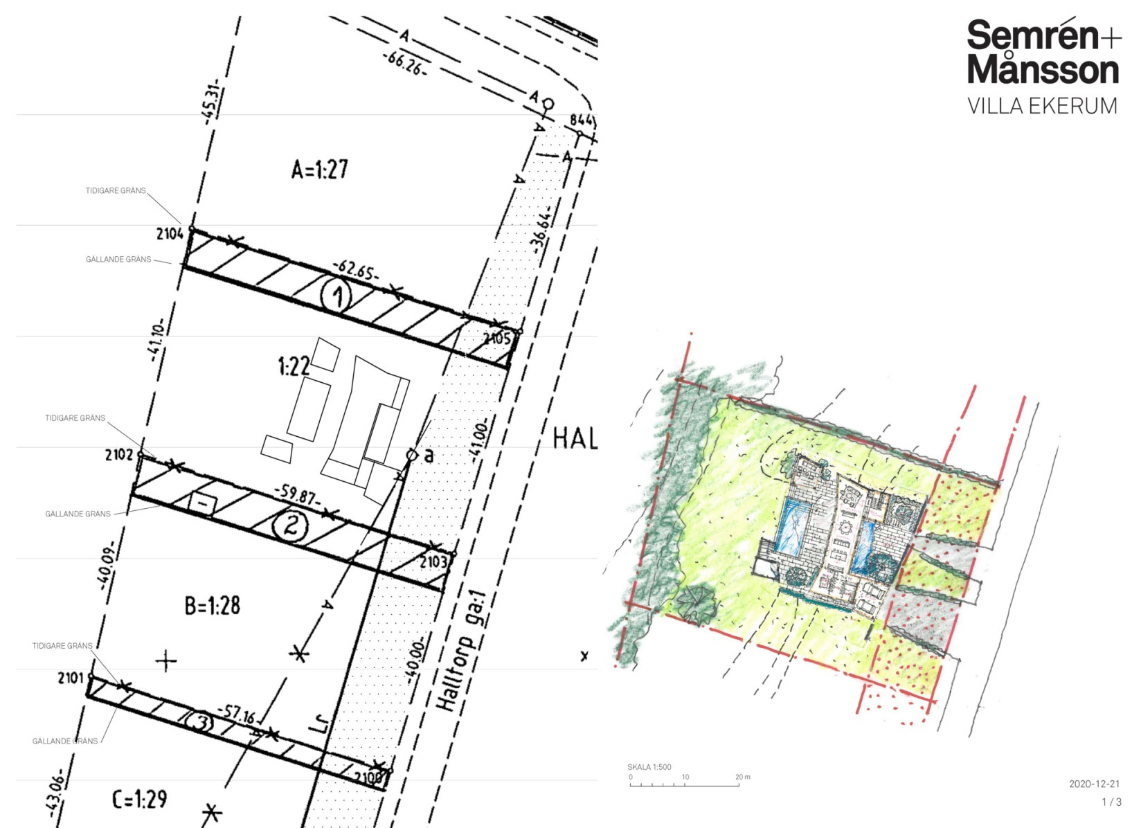
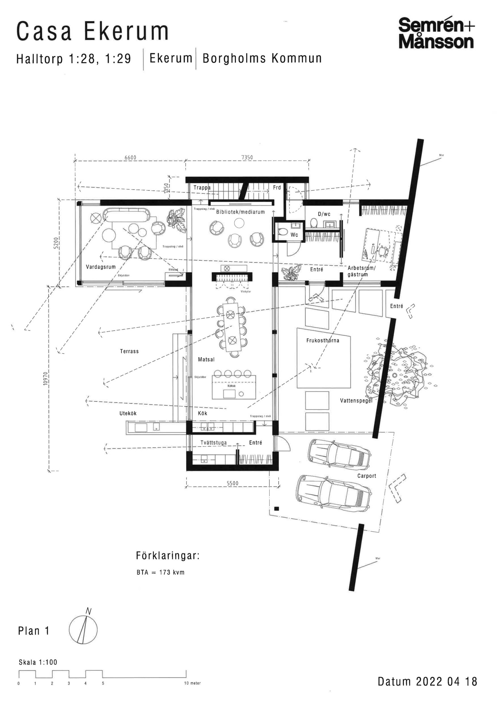
För dig som vill ha en tydlig vision finns redan ritningar för "Casa Ekerum" framtagna av arkitekt Magnus Månsson från Semrén & Månsson. Månsson står bakom bland annat Hotell Post och Hotell Avalon i Göteborg och bidrar här med en grund att bygga vidare på, där varje linje är ritad för att harmonisera med omgivningens skönhet.

(För exakta tomtgränser, se separat fastighetskarta).
Omringad av Ölands naturliga skatter Omringad av Ölands naturliga skatter, ger denna plats en unik möjlighet att leva i harmoni med omgivningarna, njuta av en aktiv livsstil och förbättra ditt golfspel. Permanent- eller fritidsboende? Du väljer! Här bor du bra tolv månader om året, endast en kort promenad från sol, bad och en av Sveriges mest kompletta resorter. Ekerum Resort Öland erbjuder inte bara två välrenommerade golfbanor utan även SPA-anläggning, padel- och tennisbanor, motionsslingor för både löpning och mountainbike samt pizzeria. Förskola, grundskola (F-6) och affär finns i närliggande Rälla som även har en aktiv idrottsförening. På ca 10 minuter med bil når du Färjestaden i söder och Borgholm i norr med all service du kan tänkas behöva. Borgholm är en erkänd och välbesökt turistort som lever upp sommartid med stort utbud av restauranger, caféer och mysiga butiker. Fastlandet och Kalmar nås med både bil och buss på knappt 30 minuter.


Det här är inte bara en tomt. Det är en möjlighet att skapa ditt eget drömboende mitt i en av Ölands mest eftertraktade miljöer, där gränsen mellan vardag och semester är lövtunn.

Fakta och dokument

Typ
Tomt
Upplåtelseform
Friköpt
Fast.beteckning
Halltorp 1:28
Adress
Gårdsvägen 6
Postadress
387 92 Borgholm
Område
Ekerum
Kommun
Borgholm
Tomtarea
2 123 m²
Pris
4 975 000 kr
Övrigt
Tillträde efter överenskommelse. Uppgifterna i objektbeskrivningen härrör huvudsakligen från säljaren och kontrolleras av fastighetsmäklaren endast om omständigheterna ger anledning till detta.
Vatten/avlopp
Vatten saknas, Avlopp saknas. Läs mer om taxor och avgifter för anslutning på https://borgholmenergi.se/privat/vatten-och-avlopp/avgifter-och-priser/.
Tomten
Borrat för bergvärme.

Driftkostnader

Ekonomi

Taxeringsvärde:
857 000 kr (fastställt avseende år 2024)
Markvärde:
857 000 kr
Skatt/avgift:
8 570 kr
Typkod:
210, Småhusenhet, tomtmark

Servitut/ Planbestämmelser

Planbestämmelser: Detaljplan (1988-10-31)
Rättigheter last: Last: Ledningsrätt Vatten och avlopp, 0885-818.1

Gemensamhetsanläggningar: Gemensamhetsanläggning: Borgholm Halltorp GA:1 Ändamål: Vägar
Gemensamhetsanläggning: Borgholm Halltorp GA:2 Ändamål: Vägar

Ekonomi

Taxeringsvärde:
857 000 kr (fastställt avseende år 2024)
Markvärde:
857 000 kr
Skatt/avgift:
8 570 kr
Typkod:
210, Småhusenhet, tomtmark

Erbjudande boendekalkyl

Om du önskar få en skriftlig beräkning av boendekostnaderna - en boendekostnadskalkyl – ta kontakt med ansvarig mäklare.

Vi hjälper dig att finansiera ditt boende

Ansök om Lånelöfte hos Handelsbanken. Vi erbjuder konkurrenskraftiga räntor och lånebesked inom 24h. Du är också varmt välkommen att kontakta Jasmine på vårt kontor i Kalmar för personlig service.

Jasmine Ghandour Rådgivare 0480-48 01 61 [email protected]