Mätarevägen 3 Ett nybyggt hem med själ, stil och vardagsglädje i populära Fjölebro
Scrolla ner

Mätarevägen 3

I startblocken

En bostad I startblocken är förberedd för försäljning. Är du intresserad av bostaden redan nu, kontakta ansvarig mäklare.
Läs mer om tjänsten
Antal rum:
6 rum, varav 4–5 sovrum
Boarea/biarea:
162 kvm
Kommun/Område:
Kalmar / Fjölebro
Bostadstyp:
Friliggande villa
Byggår:
2022
Fast.beteckning:
Lantmätaren 5

Kontakta mäklaren för visning.

Ett hem där värme möter stil Redan i hallen märks det att det här är ett hem där varje detalj är genomtänkt. Klinkergolvet löper enhetligt från entrén vidare mot både badrum och groventré, vilket skapar en fin sammanhängande känsla. Härifrån övergår golvet till en ljus parkett från Bjelin som breder ut sig över entréplanets sociala ytor – ett golv som tillsammans med de varma färgerna ger rummen en mjuk, inbjudande ton. Köket från HTH är både elegant och praktiskt, med vitvaror från Siemens och en generös köksö som bjuder in till samtal, matlagning och spontana stunder med familj och vänner. I direkt anslutning ligger matplatsen och vardagsrummet – luftiga, välproportionerade rum där ljuset flödar in genom stora fönster och där gränsen mellan inne och ute suddas ut genom dubbeldörrarna mot uteplatsen. Badrummet på entréplanet är helkaklat och genomtänkt i sin utformning, och tvättstugan/groventrén har samma klinkergolv och väggkulör som resten av planet – en detalj som knyter ihop helheten och förstärker den harmoniska känslan i hemmet.
Fjölebro – familjevänligt med naturen runt hörnet Den specialbyggda trappan öppna upp rymden mellan våningsplanen och leder upp till övervåningen – en plats för lugnare stunder och vardagsliv i ett mjukare tempo. Även på övervåningen är det jordnära och naturliga toner, vilket ger rummen en stillsam, behaglig känsla. Även här löper det vackra parkettgolvet från Bjelin genom hela våningsplanet. Allrummet fungerar som familjens andra vardagsrum – en naturlig plats för lek, filmkvällar eller lugna morgnar. Fyra sovrum ger gott om plats för både stora och små, och det mindre rummet intill master bedroom är idag inrett som klädkammare men kan enkelt återställas till sovrum om behovet förändras. Det helkaklade badrummet på övervåningen är rymligt och genomtänkt, med en inbjudande känsla som passar familjens morgonrutiner så väl som kvällsrutiner.

Fakta och dokument

Typ
Friliggande villa
Upplåtelseform
Friköpt
Fast.beteckning
Lantmätaren 5
Adress
Mätarevägen 3
Postadress
39363 Kalmar
Område
Fjölebro
Kommun
Kalmar
Boarea
162 m² (Areauppgifter enligt taxeringsinformationen)
Antal rum
6 rum och kök, varav 4–5 sovrum
Tomtarea
700 m²
Övrigt
Tillträde efter överenskommelse. Uppgifterna i objektbeskrivningen härrör huvudsakligen från säljaren och kontrolleras av fastighetsmäklaren endast om omständigheterna ger anledning till detta.

Entréplan

Redan i hallen märks det att det här är ett hem där varje detalj är genomtänkt. Klinkergolvet löper enhetligt från entrén vidare mot både badrum och groventré, vilket skapar en fin sammanhängande känsla. Härifrån övergår golvet till en ljus parkett från Bjelin som breder ut sig över entréplanets sociala ytor – ett golv som tillsammans med de varma färgerna ger rummen en mjuk, inbjudande ton. Köket från HTH är både elegant och praktiskt, med vitvaror från Siemens och en generös köksö som bjuder in till samtal, matlagning och spontana stunder med familj och vänner. I direkt anslutning ligger matplatsen och vardagsrummet – luftiga, välproportionerade rum där ljuset flödar in genom stora fönster och där gränsen mellan inne och ute suddas ut genom dubbeldörrarna mot uteplatsen. Badrummet på entréplanet är helkaklat och genomtänkt i sin utformning, och tvättstugan/groventrén har samma klinkergolv och väggkulör som resten av planet – en detalj som knyter ihop helheten och förstärker den harmoniska känslan i hemmet.

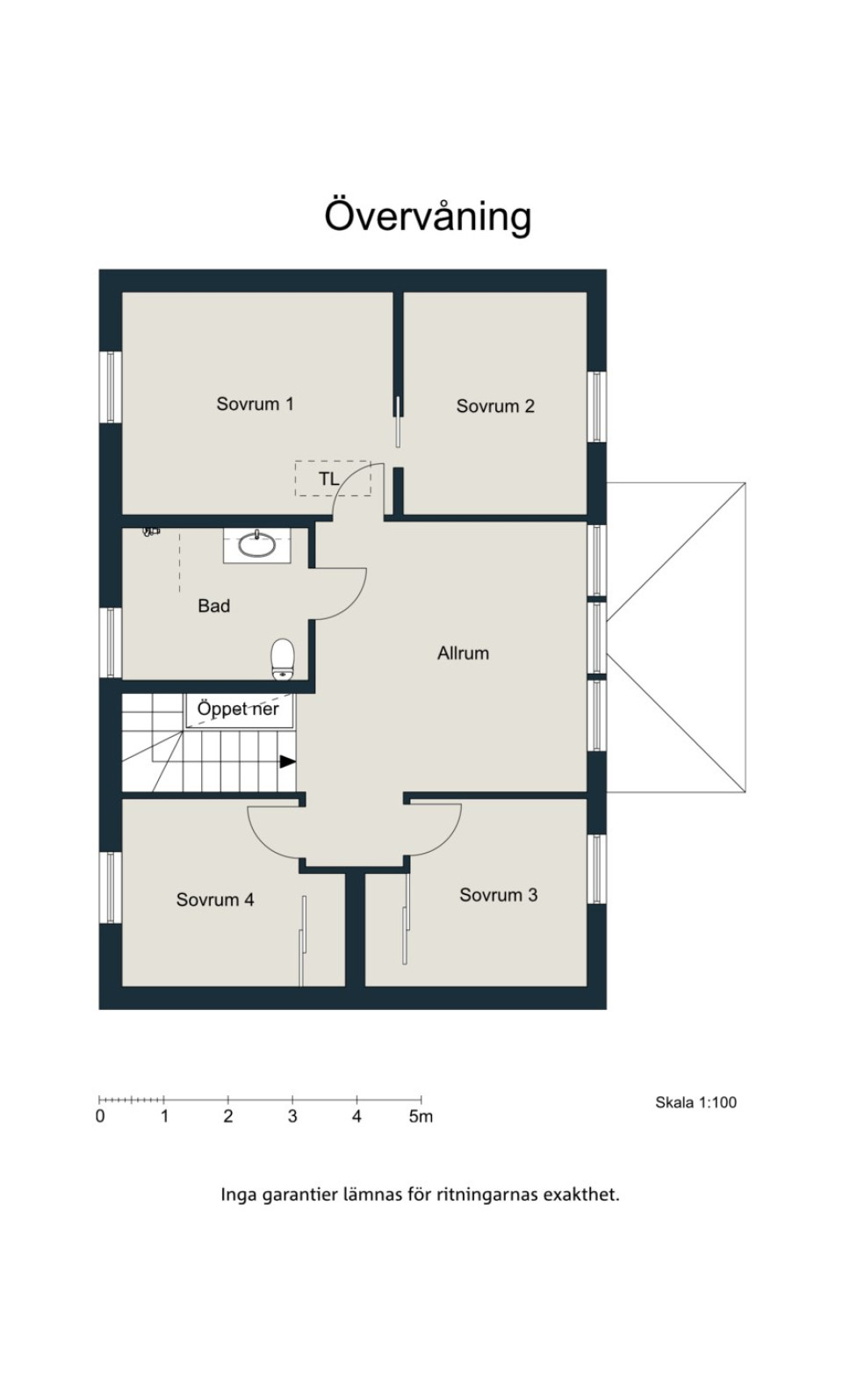
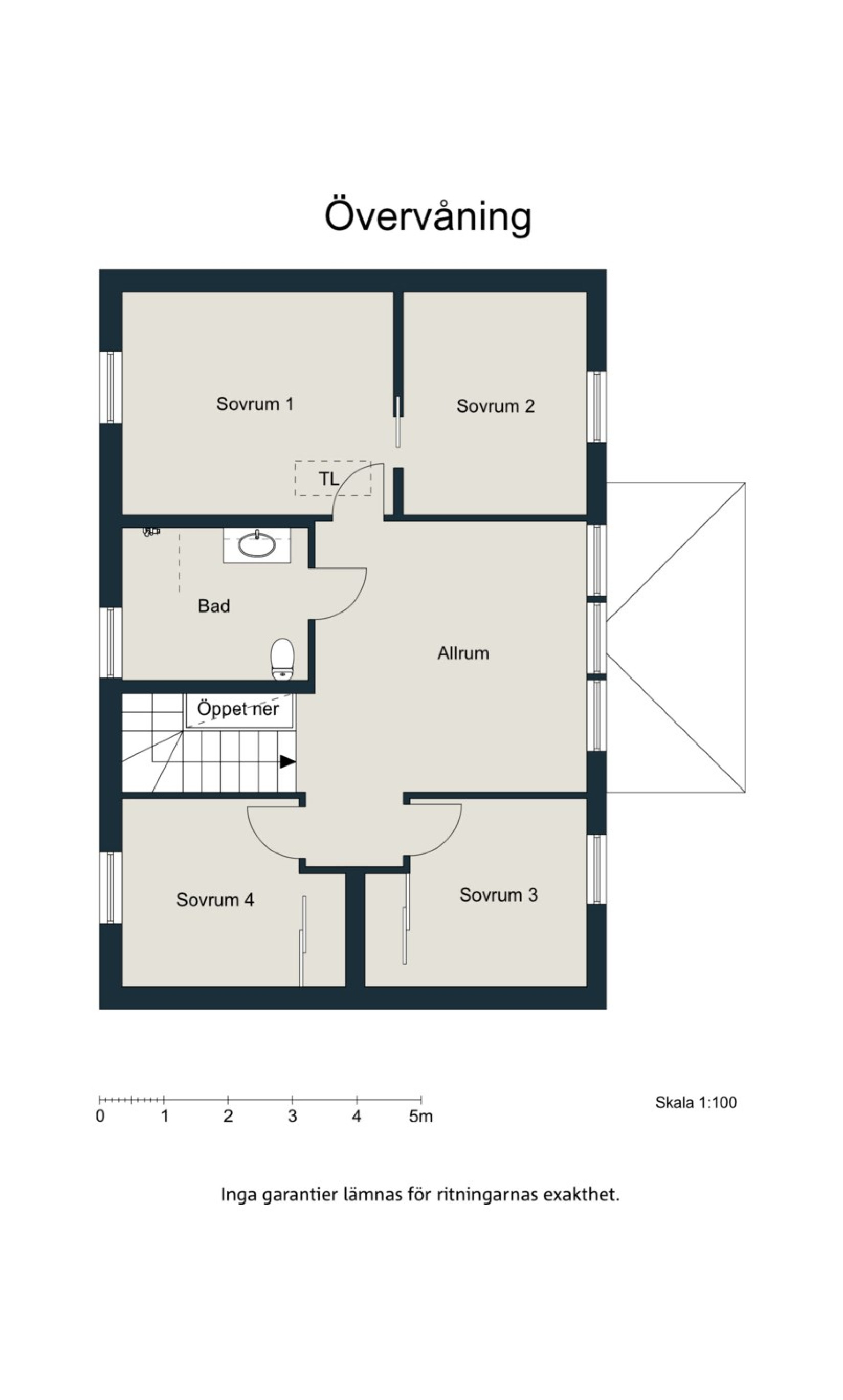
Övervåning

Den specialbyggda trappan öppna upp rymden mellan våningsplanen och leder upp till övervåningen – en plats för lugnare stunder och vardagsliv i ett mjukare tempo. Även på övervåningen är det jordnära och naturliga toner, vilket ger rummen en stillsam, behaglig känsla. Även här löper det vackra parkettgolvet från Bjelin genom hela våningsplanet. Allrummet fungerar som familjens andra vardagsrum – en naturlig plats för lek, filmkvällar eller lugna morgnar. Fyra sovrum ger gott om plats för både stora och små, och det mindre rummet intill master bedroom är idag inrett som klädkammare men kan enkelt återställas till sovrum om behovet förändras. Det helkaklade badrummet på övervåningen är rymligt och genomtänkt, med en inbjudande känsla som passar familjens morgonrutiner så väl som kvällsrutiner.

Byggnadstyp
2 planshus
Byggnadsår
2022
Fasad
Trä
Stomme
Trä
Fönster
3-glasfönster isoler
Tak
Betongpannor och falsat plåtta
Grund
Platta på mark med underliggande isolering
Uppvärmning
Frånluftsvärmepump (Vattenburet system)
Vatten/avlopp
Kommunalt vatten, Kommunalt avlopp.
Ventilation
Mekanisk frånluft
Uteplats
ca 70 kvm altan med härlig kvällssol
Bilplats
Garageuppfart - förberett matningar för garage.
TV/internet
Bredband: Fiber.
Försäkring
Bostaden är fullvärdesförsäkrad.

Energideklaration

Status
Utförd (2025-10-15)
Primärenergital
75 kWh/m2/år
Energiklass
C

Driftkostnader

Uppvärmning
3 540 kr /år
Hushållsel
4 672 kr /år
Vatten/avlopp
15 532 kr /år
Renhållning
2 772 kr /år
Försäkring
5 083 kr /år
Summa
31 599 kr /år
Två vuxna, två barn.

Ekonomi

Taxeringsvärde:
3 751 000 kr (fastställt avseende år 2024)
Värdeår:
2022
Byggnadsvärde:
3 021 000 kr
Markvärde:
730 000 kr
Typkod:
220, Småhusenhet, bebyggd

Pantbrev

Det finns 1 st pantbrev om sammanlagt 3 825 000 kr.

Servitut/ Planbestämmelser

Planbestämmelser: Detaljplan (2018-01-29)

Erbjudande boendekalkyl

Om du önskar få en skriftlig beräkning av boendekostnaderna - en boendekostnadskalkyl – ta kontakt med ansvarig mäklare.

Planritningar

Planritning
Planritning

Vi hjälper dig att finansiera ditt boende

Ansök om Lånelöfte hos Handelsbanken. Vi erbjuder konkurrenskraftiga räntor och lånebesked inom 24h. Du är också varmt välkommen att kontakta Jasmine på vårt kontor i Kalmar för personlig service.

Jasmine Ghandour Rådgivare 0480-48 01 61 [email protected]